お探しの物件に関するキーワードを入力
住所・条件など複数可能
2025年12月12日
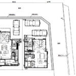
玉川学園新築分譲住宅2棟!!1号棟・5498万円~2号棟・5698万円
2025年12月1日
【弊社売主物件】南長津田団地3階のお部屋の新規売出し!
2025年12月1日
竹山団地4丁目4階部分、おかげさまでご成約頂きました。
2025年11月30日
弊社、売主物件「東建座間ハイツ4号棟9階」のお部屋が無事にご成約いたしました。
2025年11月17日
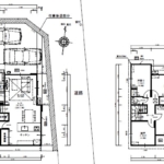
宮下本町新築10期・ご成約御礼申し上げます!!沢山のお問い合わせありがとうございました♪
2025年10月30日
相模台第弐団地弐号棟404号室!!ご成約御礼申し上げます♪沢山のお問い合わせありがとうございました。
2025年10月16日
宮下本町新築10期:4399万円→4299万円値下がりしました!!完成しておりますのでいつでも内覧可能です♪
2025年10月3日
木曽西4丁目中古建!!価格変更!!3980万円→3880万円
2025年9月19日
宮下本町新築10期価格変更しました!!
2025年9月11日
相模大野最終1区画土地・ご成約になりました!!沢山のお問い合わせありがとうございました♪
2018年3月20日
2018年1月18日
2018年1月16日








新築一戸建て










